Magnifique propriété nichée au coeur de la nature, située en montagne, offrant un environnement exceptionnel où règnent calme et sérénité. Cette résidence lumineuse propose 3 chambres, 2 salles de bain et une salle d'eau. Son terrain boisé de près de 3 acres procure une intimité totale et un contact privilégié avec la nature. Vous y trouverez également un garage simple détaché, une véranda invitante, ainsi qu'une magnifique cuisine et un entretien impeccable. Accès direct aux sentiers du Mont-Orford et au lac Brompton. Un lieu unique alliant confort, espace et qualité de vie, au coeur d'un décor nature à couper le souffle.
Lustres, luminaires, poêle combustion lente, frigo, lave-vaisselle, deuxième frigo dans le sous-sol, génératrice, ouvre porte électrique, laveuse, sécheuse
Biens meublants
$133,800
$463,700
Située dans un secteur directement relié au projet
d'agrandissement du parc national du Mont-Orford, la
propriété bénéficie d'un accès privilégié à un
environnement naturel en pleine bonification, grâce aux
investissements majeurs prévus pour l'ajout de sentiers
pédestres et cyclables dans le secteur d'Orford et du lac
Brompton.
Une maison au coeur de la nature :
*Construction 2008
*Architecture unique sur 3 étages.
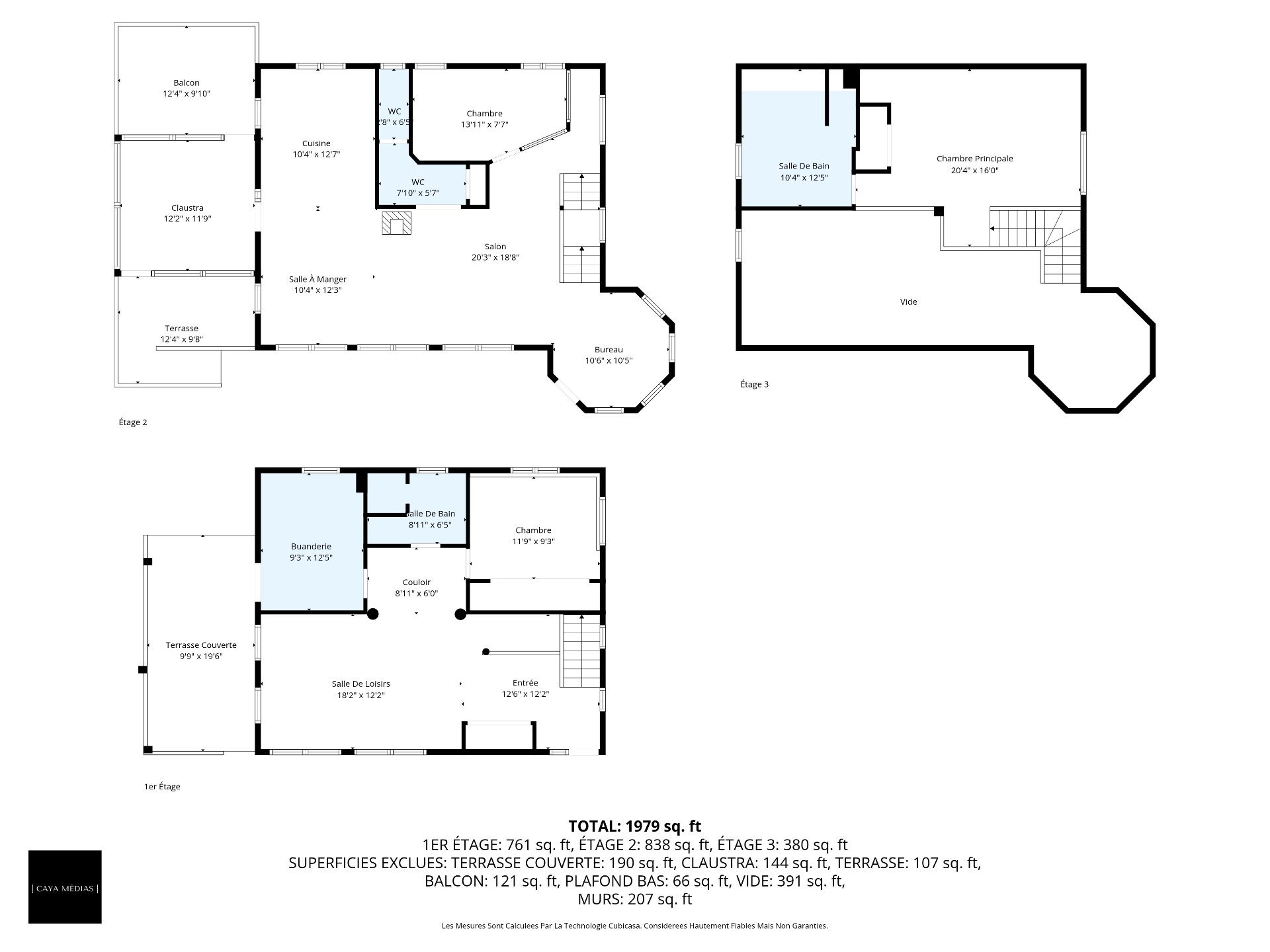
*Superficie habitable : 1979 pi².
Espaces de vie :
*Aire de vie ouverte au rez-de-chaussée.
*3 chambres dont une en mezzanine | 2 salles de bain et 1
salle d'eau.
*Espace bureau au rdc.
Terrain et extérieurs :
*Terrain boisé de 127 219 pi² (2,92 acres).
*Garage détaché simple sur deux niveaux permettant un
stationnement intérieur.
*Terrasses et balcons entourés de nature.
Emplacement privilégié :
*10 min du village de Sainte-Élie-d'Orford, 15 min de Magog
et 25 min du CHUS.
*À proximité du lac Fraser, du golf et du centre de ski du
Mont-Orford.
*Secteur paisible et recherché.
Autres informations pertinentes :
*Filage complet pour l'installation d'un système d'alarme.
*Entretien annuel effectué par Bionest (montant au dossier).
*Plancher du garage prévu pour être chauffant au glycol --
tuyaux et filage déjà installés.
*Ponceau remplacé en 2023.
Accès et droits :
*Droit de passage vers le Parc national du Mont-Orford via
les rues du développement.
*Chemins accessibles comme pistes cyclables et passages
piétonniers.
*Droit de passage commun vers le lac Brompton, tel que
décrit à l'acte publié à Sherbrooke sous le numéro 12 256
636.
La présente ne constitue pas une offre ou une promesse
pouvant lier le vendeur à l'acheteur, mais une invitation à
soumettre de telles offres ou promesses.
|
DÉTAILS DE PIÈCE |
|||
|---|---|---|---|
| Pièce | Dimensions | Niveau | Sol |
| Hall d'entrée | 12.6 x 12.2 P | Rez-de-chaussée | Céramique |
| Salon | 18.2 x 12.2 P | Rez-de-chaussée | Bois |
| Chambre à coucher | 11.9 x 9.3 P | Rez-de-chaussée | Bois |
| Salle de bains | 6.5 x 8.11 P | Rez-de-chaussée | Ardoise |
| Salle de lavage | 9.3 x 12.5 P | Rez-de-chaussée | Céramique |
| Cuisine | 10.4 x 12.7 P | 2ième étage | Céramique |
| Salle à manger | 10.4 x 12.3 P | 2ième étage | Bois |
| Salon | 20.3 x 18.8 P | 2ième étage | Bois |
| Salle d'eau | 7.10 x 5.7 P | 2ième étage | Céramique |
| Chambre à coucher | 13.11 x 7.7 P | 2ième étage | Bois |
| Bureau à domicile | 10.6 x 10.5 P | 2ième étage | Bois |
| Chambre à coucher principale | 20.4 x 16.0 P | 3ième étage | Bois |
| Salle de bains | 10.4 x 12.5 P | 3ième étage | Céramique |
| BÂTIMENT | |
|---|---|
| Type | Maison à étages |
| Style | Détaché (Isolé) |
| Dimensions | 0x0 |
| La Taille Du Lot | 11819.1 MC |
| DÉPENSES | |
|---|---|
| Coût d'énergie | $ 3199 / année |
| Taxes municipales (2025) | $ 2508 / année |
| Taxes scolaires (2025) | $ 381 / année |
|
CARACTÉRISTIQUES |
|
|---|---|
| Particularités | Accès à l'eau, Terrain boisé : feuillus, Villégiature/Chalet |
| Salle de bains/salle d'eau | Attenante à la chambre principale |
| Stationnement | Au garage, Extérieur |
| Revêtements | Autre |
| Toiture | Bardeaux d'asphalte |
| Sous-sol | Bas (moins de 6 pieds) |
| Fondation | Béton coulé |
| Armoires | Bois |
| Système d'égouts | Champ d'épuration, Fosse septique, Système BIONEST |
| Garage | Détaché |
| Équipement disponible | Échangeur d'air, Porte de garage électrique, Thermopompe murale |
| Énergie pour le chauffage | Électricité |
| Type de fenêtre | Guillotine, Manivelle |
| Allée | Non pavée |
| Proximité | Parc-espace vert |
| Aménagement du terrain | Paysager |
| Mode de chauffage | Plinthes à convection, Plinthes électriques |
| Foyers-poêles | Poêle à bois |
| Approvisionnement en eau | Puits artésien |
| Fenêtres | PVC |
| Zonage | Résidentiel |
Chargement des cartes...
Chargement de la vue de la rue...